Husen i Projekt Kaxås
Så här kommer de att se ut – de nya ekohusen i jämtländska Kaxås! De första husen kan vara inflyttningsklara första kvartalet 2020.
Uppdaterad: 2019-08-08

Det går undan i projekt Kaxås, som initierats av IT-entreprenören Dan Olofsson, som Land skrivit om tidigare.
På grund av det stora intresse som barnfamiljer från hela landet visat, vill han nu skynda på bygget av ekobyn Ladriket.
Vidsträckt utsikt

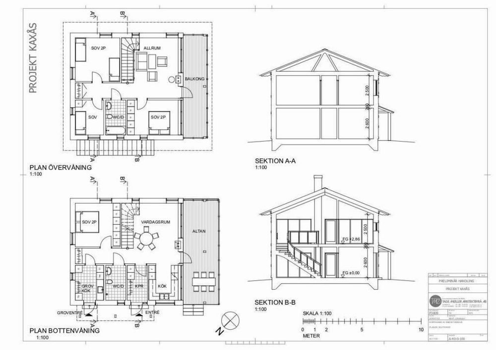
Det är totalt 40 hus som är planerade att ligga högt upp med vidsträckt utsikt över bygden.
De är på två våningar, 140 kvadratmeter och kostar 2,4- 3,1 miljoner kronor inklusive tomt, VA och värmesystem.
Vallningsbod och bakstuga

I ekobyn ska flera gemensamma anläggningar finnas. Till exempel lekplats, vallningsbod för skidåkare, bakstuga med matbord, fiskebod, tennis- och isbana samt skid- och vandringsspår.
Två snöskotrar
Dessutom två snöskotrar att dela på och möjlighet att till självkostnadspris köpa en box i ett stall med tillhörande paddock och ridstigar.
Hoppas på klartecken

Krokoms kommun har ännu inte har hunnit godkänna detaljplanen.
Men Dan Olofsson och de två andra projektledarna har ändå beslutat att ge klartecken för att släppa sex första husen till försäljning för inflyttning i början av 2020.
”Projekt Kaxås bedömning är att detaljplanen kommer att beviljas eftersom Ekobyn Ladriket väl stämmer in med Krokoms kommun vilja att värna landsbygden och öka invånarantalet,” skriver de i ett pressmeddelande.
Läs också: Hyr ut och finansiera gårdens renovering
Börjar bygga snart
Flera barnfamiljer har redan besökt byn i sommar och visat ett så seriöst intresse att projektledarna nu vill ta nästa steg.
De första husen kan börja byggas i höst med bygglov och vara inflyttningsklara under första kvartalet 2020.
Om alla 40 husen i ekobyn byggs ökar invånarantalet med 100-120 personer. Till det kommer de familjer som flyttar in i de äldre lediga hus som projektet letat fram.
Fördubblat invånarantal
Totalt skulle det innebära en fördubbling av invånarantalet.
Jan Runsten, ordförande i bygg- och miljönämnden, är positiv men flaggar för att vatten och avlopp måste ses över.
– Det är osäkert om reningsverket i Kaxås klarar 40 nya bostadshus, säger han till öp.se.
Samma sak gäller den i dag nedläggningshotade skolan som nu istället kan behöva byggas ut.
Kommunen får också satsa
Karin Bångman, en av de tre projektledarna, förklarar att de har ställt frågan om det kommunala reningsverket i samband med detaljplansansökan.
– Om vi bygger 40 nya hus får kommunen in många miljoner kronor per år i nya skatteintäkter för lång tid framåt, och då är investeringen i utbyggnad av reningsverket marginell. Också en kommun bör investera något för att man ska få tillväxt, menar hon.
Läs också: Fler kommuner kartlägger ödehus












_ebd156fcd6.png)









